Günther Fischer Architektur
Start
Ausgewählte Bauten und Projekte
Nettelbeckplatz Berlin
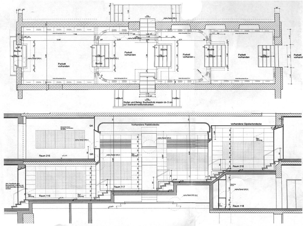
Goethe-Nationalmuseum Weimar
Nietzsche-Museum Naumburg, 2001
Telekom Andreasstraße Erfurt, 1995
Stadterneuerung Brück, Mark Bandenburg, 1991 – 2010
Publikationen
Bücher
Kleinere Schriften zu Alberti
Zeitschriften
Theorie
Architekturtheorie.FHE
Spezialist für das Ganze
Loft-City-Projekt
Erste Skizzen
Kontakt
Goethe-Nationalmuseum Weimar
Foyer, Möbel aus Glas
Kaskade
Hofsaal
Haupttreppe
Café Faustina
Bestand und Planung