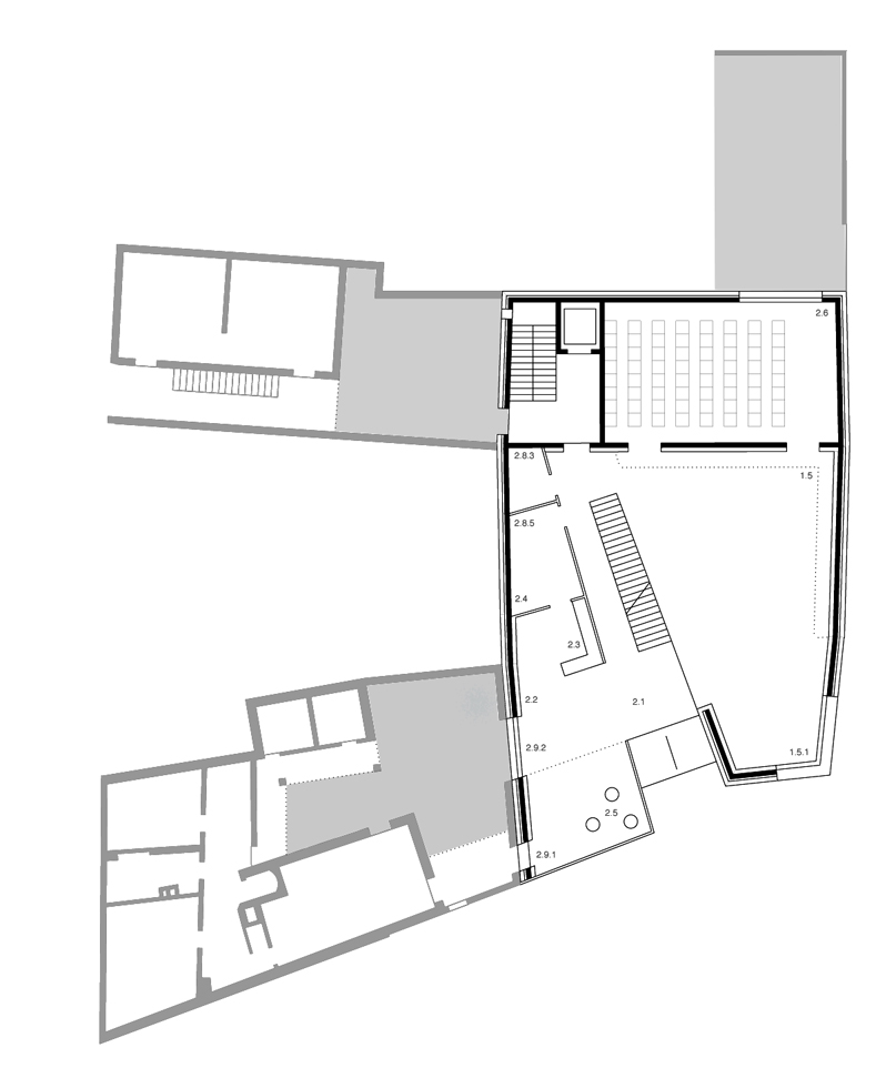
Günther Fischer   ARCHITEKTUR

Nietzsche-Museum Naumburg, 2001

Wettbewerb, 3. Preis